3月6日
在十四届全国人大二次会议
青海代表团开放团组会议上
全国人大代表、青海省海东市市长王华杰
拿出两张“特殊”的设计图
瞬间吸引了全场的目光

3月6日,全国人大代表、青海省海东市市长王华杰在青海代表团开放团组会议上发言。新华社记者 熊争艳 摄
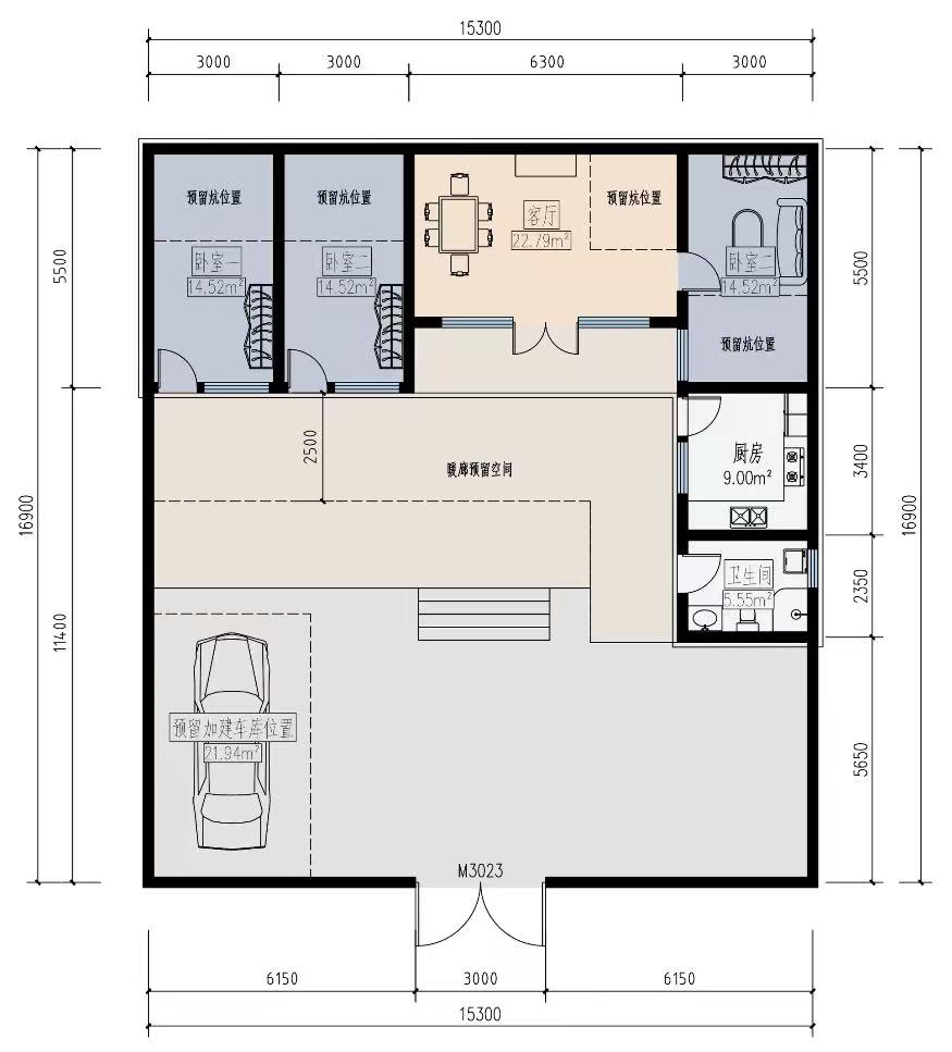
王华杰手中的图纸
一张是房屋的效果图:
土夯墙、红砖顶

另一张
则是它的平面图:
面积120平米
空间宽敞,布局合理

之所以说它特殊
是因为图纸的“设计与想法”
很多都来自当地村民
……
“你好
我们今天为你的新房子
来征求意见”

2023年12月19日拍摄的遭受泥石流灾害的青海省海东市民和回族土族自治县中川乡草滩村一角(无人机照片)。新华社记者 张宏祥 摄
两个月前的一个早上
来自市县乡村的工作人员
拿着房屋设计方案来到了
青海省海东市民和县中川乡草滩村
一处临时居住安置点
这是村民祁明守第二次见到他们
三个月前
祁明守全家七口人
在严寒中经历了
惊心动魄的一夜
当晚
甘肃积石山6.2级地震突然袭来
与积石山县接壤的草滩村
发生了严重次生灾害——
浓稠的淤泥大量涌入村庄
部分民房倒塌、淹没在泥浆之下
“听到轰轰的声音
我想出门看看是啥情况
还没反应过来
泥石流(沙涌)就快到我家门口了
大概五米多高”
回忆起当晚的情景
祁明守仍然后怕
在余震与严寒中
祁明守和很多失去家园的村民一起
捱过了刻骨铭心的一夜
很快
在社会各界的援助下
村民们从垮塌的房屋搬进帐篷
又从帐篷住进温暖干净的板房
生产生活稳步恢复
大地留下的伤口
在时间中慢慢平复

2月3日,小朋友在金田村安置点的“儿童之家”玩耍。新华社记者 张龙 摄
忙碌的日子里
祁明守的心情也一天天好起来
可每当夜幕降临
这位53岁的硬汉
总会莫名地对着天花板发愁
“房子怎么办”
祁明守最大的希望是
“想有一个自己的家”

1月1日,在青海省海东市民和回族土族自治县中川乡草滩村安置点,志愿者为村民盛饺子。新华社记者 张龙 摄
没过多久
村里就传来了好消息:
村子将易地搬迁
政府要给村民盖新房
房屋的外观、户型、面积、朝向
都要征求大伙的意见
“我家人口多
想要个大点的房子”
提出意见后不久
工作人员又专门来
请祁明守到县里
参加讨论设计方案
“这样的安排
很贴心、很暖心”
祁明守说

村民祁明守在检查自家耕地情况。
“我们河湟地区的老百姓
世世代代最喜欢
这种土夯墙加红顶的颜色
也是我们的传统特色”
王华杰说
这两张图片只是
最受当地百姓欢迎的
户型设计方案之一
完整图集
有6种风貌、24种户型
可自由选择
记者翻看后发现:
为了照顾老年人的生活习惯
房子的客厅里特意留下了暖炕
连洗手间、房屋颜色等
也都考虑了村里的风俗习惯
最终
经过村干部挨家挨户征求意见和
反复优化调整后
搬迁安置房的方案敲定了
预计到年底前完成房屋交付

1月1日,在青海省海东市民和回族土族自治县官亭镇喇家村安置点,村民在下象棋。新华社记者 张龙 摄
王华杰说
经历这次生死考验
大家不仅更珍惜新生活
在重建家园的过程中
也更加坚强团结
对未来充满期待和信心
一个个贴心细节的背后
是对民意的一份份尊重
一次次战胜苦难后的重生与不屈
是这片充满希望的土地上
亘古不变的故事
来源:新华社微信
出品:黄豁、常爱玲
策划:齐慧杰、周宁、令伟家
监制:宋君毅、徐蕊
统筹:李瑜、李永锡
记者:周喆、央秀达珍
编辑:徐步云、伍越