实探首开玲珑汇:交通便利 商住楼税费问题隐忧
位于丰台区京西地段的首开玲珑汇
新华房产北京讯11月22日(记者 张金凤)位于丰台区京西地段的首开玲珑汇于11月2日开盘至今,因为商住性质颇让不少没有资格购纯住宅的置业者关注,加上该项目的主力户型为40-60㎡且交通位置较便利,对于北京刚需来说,该项目无疑是利好项目。。

新华网记者实地探访该项目,从样板间来看,项目主打的小户型在设计方面显得较方正,周边配套还算齐全。然而40年产权的商住楼一般说来,除了水电费高于普通住宅,无燃气,让人比较担忧的地方还在于未来商住项目二次转手时缴纳的相关税费问题并不明确。



小户型填补刚需市场

“现在许多年轻人买房,直接奔着小户型去了。面积在40-70平方米之间的一居室受到不少单身青年的喜爱 。再就是七八十平方米的小二居、LOFT等产品类型也是他们比较青睐的类型。”销售人员称,目前的北京市场,小户型受到格外的青睐。

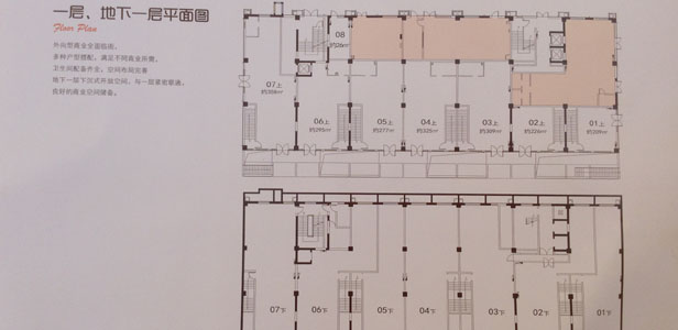
也源于此,首开玲珑汇即便标明商住性质,产权40年,还是格外受关注。记者实地探访发现,该项目推出125套小户型目前销售情况较好。从样板间来看,地下一层下沉式开放空间,与一层紧密联通。二层格局方正,布局紧凑实用。

销售人员介绍,该项目总建筑面积约1万平米,地上仅6层,项目兼有小平层、LOFT及配套商业多种产品,主力户型为54平米与61平米,其中平层层高3.1米,LOFT层高5.1-5.2米。

“LOFT 户型通常会受到不少年轻人的喜爱,尤其是受到工作性质比较有艺术性、时间地点不固定、可以在家办公的‘潮人’的关注。这样的户型面积大多在30~50平方米,层高在5米左右。”业内人士分析。

该项目销售人员也表示,虽然销售时按一层的建筑面积计算 ,但实际使用面积却可达到销售面积的近1倍 。而且高层高空间变化丰富 ,购买者可以根据自己的喜好随意设计。“这个60多平的LOFT,隔开了才合每平两万多,在这个位置算是很划算了”。

商住楼税费等后期问题堪忧

统计数据显示,今年上半年北京的商住房网签量为14068套,比去年同期上涨47.0%,而同期北京商品住宅网签量为44899套,也就是说,北京商住楼交易量相当于北京商品住房交易量的三分之一。

010030091550000000000000011200000000000000